Italiano
31.500 €

Appartamento ad Anzio (RM) zona Anzio Colonia

Appartamento in vendita • Anzio (Anzio Colonia) - C. Italia, 50
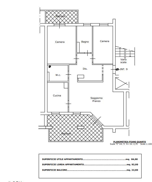
Appartamento di mq 92 ad Anzio (RM), zona Anzio Centro / Anzio Colonia, in Corso Italia, 50 posto al Piano Quarto con annessa cantina di mq 5 al Piano Seminterrato. L'immobile è composto da un salone, una cucina, due camere, due bagni di cui solamente uno munito di finestra, oltre un balcone. Internamente infissi in legno e pavimenti in ceramica. Cucina e bagno sono completamente da ristrutturare a causa di infiltrazioni ed umidità. Ascensore è presente ma non funzionante al momento della visita. Il tutto in mediocre stato di conservazione come riportato sulla CTU visionabile presso lo Studio. L'immobile viene venduto tramite vendita giudiziaria con l’assistenza legale dello Studio e il prezzo indicato si riferisce all’offerta minima. POSSIBILITÀ' DI ACQUISTO IN PRE-ASTA .

OFFERTA MINIMA € 31.500,00
Valore perizia CTU € 98.400,00

Studio Mi.Eli. and Associates ltd
POMEZIA (RM)
Tel. 06/83778285
Cell. 340/5355446

Studio Mi.Eli. è uno Studio Legale costituito da un gruppo di professionisti del settore legale e immobiliare che da anni credono che il mercato delle aste immobiliari sia un’alternativa forte, concreta e conveniente rispetto all’acquisto sul mercato libero.
Nasciamo con l’intento di promuovere una particolare tipologia di acquisto, sfatando idee e preconcetti che spesso hanno accompagnato le vendite immobiliari all’asta.
Il nostro scopo è promuovere un mercato ritenuto ancora oggi riservato a pochi, facendone conoscere le grandi potenzialità. Riteniamo che le aste immobiliari siano un’opportunità concreta per tutti e per questo motivo la nostra consulenza mira a semplificare al massimo tutte le procedure operative e burocratiche, garantendo trasparenza e certezza riguardo ciò che si acquista. Tutto questo grazie alla consulenza tecnica, giuridica e commerciale dei nostri esperti.
Con un primo incontro conoscitivo potremo valutare insieme la reale possibilità di riuscire a soddisfare le Vostre esigenze. I nostri consulenti sono a disposizione per accompagnare il cliente dalla ricerca dell'immobile fino alla consegna delle chiavi, compreso l'eventuale assistenza per l'ottenimento di un mutuo.

Studio Mi.Eli. and Associates ltd
POMEZIA (RM)
Tel. 06/83778285
Cell. 340/5355446
Caratteristiche principali
Codice
201/2023 U RM
Città
Anzio (Anzio Colonia)
Categoria
Appartamento
Prezzo
31.500 €
Locali
5
Camere
2
Bagni
1
Mq
92
Balconi
2
Mq Balcone
22
Piano
4
Classe energetica
F
Stato Immobile
Mediocre
Grado
Medio
Posizione
Centro
Panorama
Vista Aperta
Lati Liberi
2
Giardino
No
Arredi
Non Arredato
Tipo Soggiorno
Salone
Tipo Cucina
Abitabile
Infissi
Legno
Serramenti
Discreto
Persiana
Tapparella PVC
Pavim. Giorno
Ceramica
Pavim. Notte
Ceramica
Pavim. Cucina
Ceramica
Pavim. Bagno
Ceramica
Accesso Disabili
Rampa
Accesso interno disabili
Parziale
Isolamento
Non presente
Isolamento termico
Nessuno
Isolamento acustico
Nessuno
Destinato a residenti
No
Impianto d’irrigazione
No

Accessori: Porta Blindata

Mappa
C. Italia 50, Anzio (RM)
Video
Condividi su
Cookie preference