Italiano
265.500 €

Villino disposto su quattro livelli a Grottaferrata (RM)

Villa in vendita • Grottaferrata - Via Cassani, 33
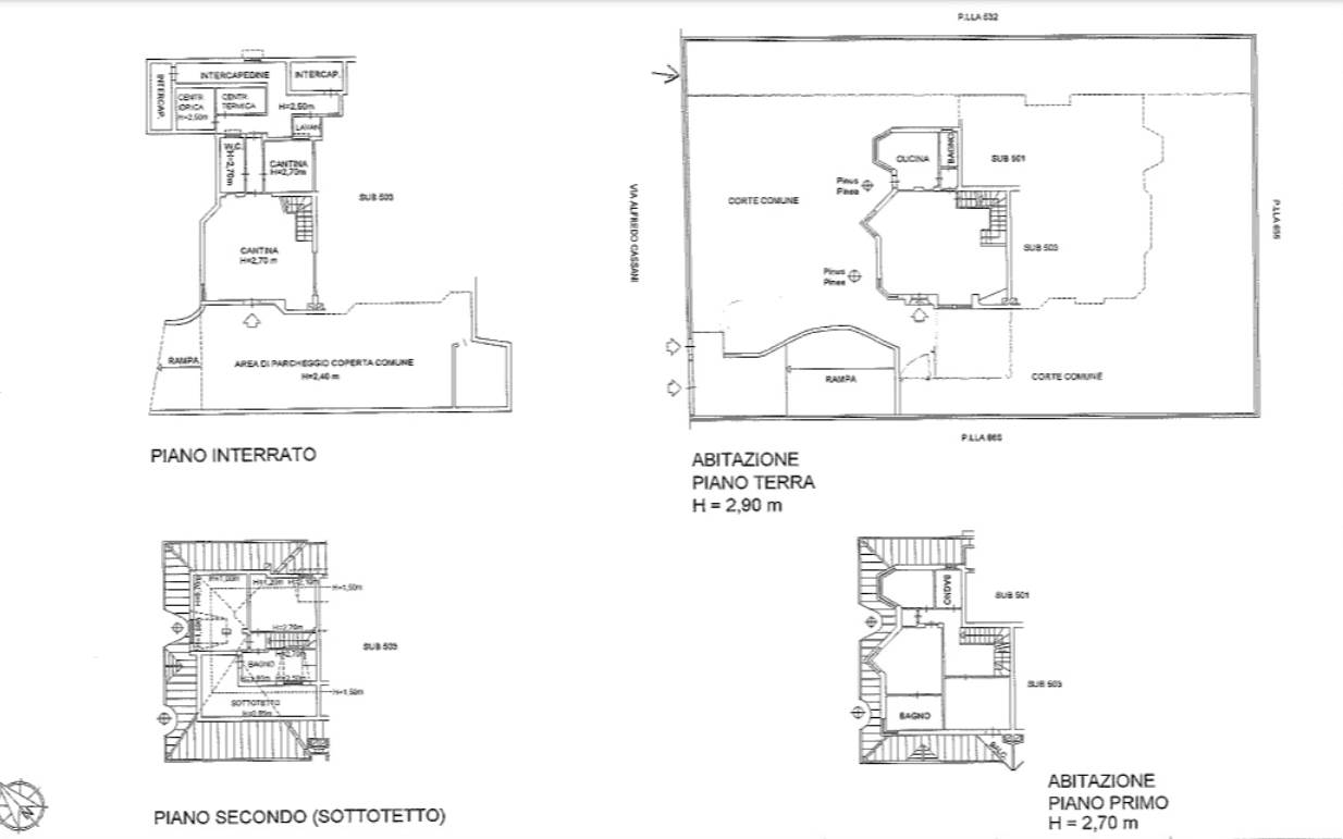
Porzione di villa trifamiliare di mq 212 (164 di abitazione) a Grottaferrata (RM) in Via Cassani n. 33 disposto su quattro livelli con annessa corte ed area di parcheggio coperta di uso comune. L'immobile è cosi composto: Al piano Interrato da cantina, lavanderia, centrale idrica, centrale termica e wc; Al piano Terra da salone, cucina e bagno; Al Piano Primo da tre camere, disimpegno, ripostigli, due bagni e un balconcino; Al Piano Secondo da due camere, bagno e ripostigli sottotetto. Internamente pavimenti in ceramica, finestre in legno con vetro camera. Il tutto in buono stato consevativo come riportato sulla CTU visionabile presso lo Studio.
L'immobile viene venduto tramite vendita giudiziaria con l’assistenza legale dello Studio e il prezzo indicato si riferisce all’offerta minima. POSSIBILITÀ' DI ACQUISTO IN PRE-ASTA .

OFFERTA MINIMA € 265.500,00
Valore perizia CTU € 471.200,00

Studio Mi.Eli. and Associates ltd
POMEZIA (RM)
Tel. 06/83778285
Cell. 340/5355446

Studio Mi.Eli. è uno Studio Legale costituito da un gruppo di professionisti del settore legale e immobiliare che da anni credono che il mercato delle aste immobiliari sia un’alternativa forte, concreta e conveniente rispetto all’acquisto sul mercato libero.
Nasciamo con l’intento di promuovere una particolare tipologia di acquisto, sfatando idee e preconcetti che spesso hanno accompagnato le vendite immobiliari all’asta.
Il nostro scopo è promuovere un mercato ritenuto ancora oggi riservato a pochi, facendone conoscere le grandi potenzialità. Riteniamo che le aste immobiliari siano un’opportunità concreta per tutti e per questo motivo la nostra consulenza mira a semplificare al massimo tutte le procedure operative e burocratiche, garantendo trasparenza e certezza riguardo ciò che si acquista. Tutto questo grazie alla consulenza tecnica, giuridica e commerciale dei nostri esperti.
Con un primo incontro conoscitivo potremo valutare insieme la reale possibilità di riuscire a soddisfare le Vostre esigenze. I nostri consulenti sono a disposizione per accompagnare il cliente dalla ricerca dell'immobile fino alla consegna delle chiavi, compreso l'eventuale assistenza per l'ottenimento di un mutuo.

Studio Mi.Eli. and Associates ltd
POMEZIA (RM)
Tel. 06/83778285
Cell. 340/5355446
Caratteristiche principali
Codice
274/2022 1 RM
Città
Grottaferrata
Categoria
Villa
Prezzo
265.500 €
Locali
11
Camere
7
Bagni
5
Mq
212
Balconi
1
Mq Balcone
2
Piano
Terra
Classe energetica
F
Stato Immobile
Buono
Grado
Medio
Posizione
Periferia
Panorama
Vista Aperta
Lati Liberi
2
Arredi
Non Arredato
Tipo Soggiorno
Soggiorno
Tipo Cucina
Abitabile
Riscaldamento
Autonomo
Tipo Riscaldam.
Caldaia
Tipo Impianto
Radiatori
Fonte Energetica
Gas
Acqua Calda
Autonoma
Raffrescamento
No
Infissi
Legno
Serramenti
Discreto
Persiana
Tapparella PVC
Pavim. Giorno
Ceramica
Pavim. Notte
Ceramica
Pavim. Cucina
Ceramica
Pavim. Bagno
Ceramica
Accesso Disabili
Rampa
Accesso interno disabili
Parziale
Isolamento
Non presente
Isolamento termico
Nessuno
Isolamento acustico
Nessuno
Destinato a residenti
No
Impianto d’irrigazione
No

Accessori: Porta Blindata, Ripostiglio

Mappa
Via Cassani 33, Grottaferrata (RM)
Video
Condividi su
Cookie preference