Appartamento a Rignano Flaminio (RM)
Appartamento in vendita • Rignano Flaminio - Via S. Rocco, 11
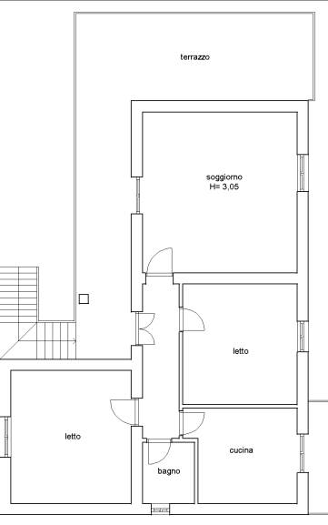
Trilocale di mq 108 sito nel comune di Rignano Flaminio (RM) in Via S. Rocco, 11 Piano Primo con sottostanti locali autorimessa e deposito ubicati al Piano Terra. L'immobile è composto da ampio salone, due camere da letto, cucina e bagno e terrazza. Porzione di corte di proprietà esclusiva di mq 340. Internamente pavimenti in ceramica e marmo. Il tutto in normale stato di manutenzione come riportato sulla CTU visionabile presso lo Studio. L'immobile viene venduto tramite vendita giudiziaria con l’assistenza legale dello Studio e il prezzo indicato si riferisce all’offerta minima. POSSIBILITÀ' DI ACQUISTO IN PRE-ASTA .
OFFERTA MINIMA € 32.500,00
Valore perizia CTU € 43.000,00
Studio Mi.Eli. and Associates ltd
POMEZIA (RM)
Tel. 06/83778285
Cell. 340/5355446
Studio Mi.Eli. è uno Studio Legale costituito da un gruppo di professionisti del settore legale e immobiliare che da anni credono che il mercato delle aste immobiliari sia un’alternativa forte, concreta e conveniente rispetto all’acquisto sul mercato libero.
Nasciamo con l’intento di promuovere una particolare tipologia di acquisto, sfatando idee e preconcetti che spesso hanno accompagnato le vendite immobiliari all’asta.
Il nostro scopo è promuovere un mercato ritenuto ancora oggi riservato a pochi, facendone conoscere le grandi potenzialità. Riteniamo che le aste immobiliari siano un’opportunità concreta per tutti e per questo motivo la nostra consulenza mira a semplificare al massimo tutte le procedure operative e burocratiche, garantendo trasparenza e certezza riguardo ciò che si acquista. Tutto questo grazie alla consulenza tecnica, giuridica e commerciale dei nostri esperti.
Con un primo incontro conoscitivo potremo valutare insieme la reale possibilità di riuscire a soddisfare le Vostre esigenze. I nostri consulenti sono a disposizione per accompagnare il cliente dalla ricerca dell'immobile fino alla consegna delle chiavi, compreso l'eventuale assistenza per l'ottenimento di un mutuo.
Studio Mi.Eli. and Associates ltd
POMEZIA (RM)
Tel. 06/83778285
Cell. 340/5355446
Caratteristiche principali
Persiana
Persiana Metallo
Accesso interno disabili
Parziale
Isolamento termico
Nessuno
Isolamento acustico
Nessuno
Accessori: Porta Blindata
Mappa
Via S. Rocco 11, Rignano Flaminio (RM)