Italiano
26.000 €

Appartamento a Genazzano (RM)

Appartamento in vendita • Genazzano - Vicolo Corto
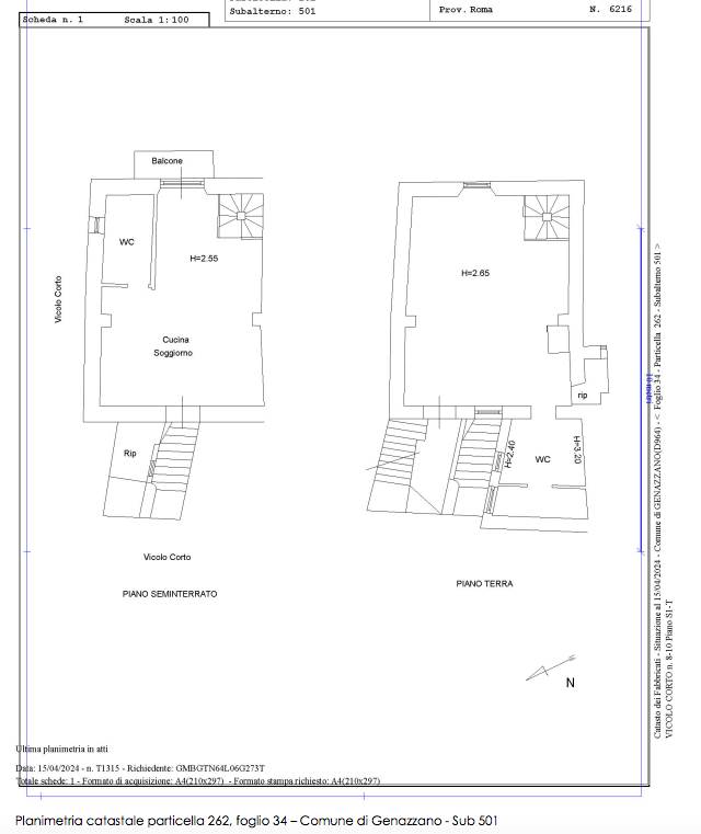
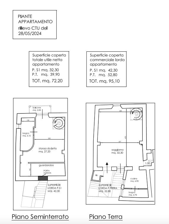
Appartamento di mq 95 a Genazzano (RM) in Via Vicolo Corto,10 posto su Piano Terra e Piano seminterrato con annesso un piccolo cortile di proprietà comune . L'immobile è cosi composto: Al Piano Terra da soggiorno, cucina, bagno e una scala a chiocciola interna che la collega con il Piano Sottostante. Qui troviamo una stanza da letto con cabina guardaroba, bagno e un piccolo balcone. Internamente pavimenti realizzati con piastrelle in ceramica/cotto. Il tutto in sufficiente stato di manutenzione come riportato sulla CTU visionabile presso lo Studio.
L'immobile viene venduto tramite vendita giudiziaria con l’assistenza legale dello Studio e il prezzo indicato si riferisce all’offerta minima. POSSIBILITÀ' DI ACQUISTO IN PRE-ASTA .

OFFERTA MINIMA € 26.000,00
Valore perizia CTU € 81.000,00

Studio Mi.Eli. and Associates ltd
POMEZIA (RM)
Tel. 06/83778285
Cell. 340/5355446

Studio Mi.Eli. è uno Studio Legale costituito da un gruppo di professionisti del settore legale e immobiliare che da anni credono che il mercato delle aste immobiliari sia un’alternativa forte, concreta e conveniente rispetto all’acquisto sul mercato libero.
Nasciamo con l’intento di promuovere una particolare tipologia di acquisto, sfatando idee e preconcetti che spesso hanno accompagnato le vendite immobiliari all’asta.
Il nostro scopo è promuovere un mercato ritenuto ancora oggi riservato a pochi, facendone conoscere le grandi potenzialità. Riteniamo che le aste immobiliari siano un’opportunità concreta per tutti e per questo motivo la nostra consulenza mira a semplificare al massimo tutte le procedure operative e burocratiche, garantendo trasparenza e certezza riguardo ciò che si acquista. Tutto questo grazie alla consulenza tecnica, giuridica e commerciale dei nostri esperti.
Con un primo incontro conoscitivo potremo valutare insieme la reale possibilità di riuscire a soddisfare le Vostre esigenze. I nostri consulenti sono a disposizione per accompagnare il cliente dalla ricerca dell'immobile fino alla consegna delle chiavi, compreso l'eventuale assistenza per l'ottenimento di un mutuo.

Studio Mi.Eli. and Associates ltd
POMEZIA (RM)
Tel. 06/83778285
Cell. 340/5355446
Caratteristiche principali
Codice
360/2023 U RM
Città
Genazzano
Categoria
Appartamento
Prezzo
26.000 €
Locali
3
Camere
1
Bagni
2
Mq
95,6
Balconi
1
Mq Balcone
2
Piano
Terra
Classe energetica
F
Stato Immobile
Abitabile
Grado
Economico
Posizione
Centro Storico
Panorama
Vista Aperta
Orientamento
Est
Lati Liberi
1
Giardino
No
Arredi
Non Arredato
Tipo Soggiorno
Soggiorno
Tipo Cucina
Abitabile
Riscaldamento
Autonomo
Tipo Riscaldam.
Caldaia
Tipo Impianto
Termosifoni
Fonte Energetica
Gas
Acqua Calda
Autonoma
Raffrescamento
No
Infissi
Legno
Serramenti
Discreto
Persiana
Tapparella Legno
Pavim. Giorno
Ceramica
Pavim. Notte
Ceramica
Pavim. Cucina
Ceramica
Pavim. Bagno
Ceramica
Accesso Disabili
Rampa
Accesso interno disabili
Pieno accesso
Isolamento
Non presente
Isolamento termico
Nessuno
Isolamento acustico
Nessuno
Destinato a residenti
No

Accessori: Porta Blindata, Ripostiglio

Mappa
Vicolo Corto , Genazzano (RM)
Video
Condividi su
Cookie preference