Italiano
55.000 €

Bilocale a Morlupo (RM)

Appartamento in vendita • Morlupo - Via dei Villini, 18
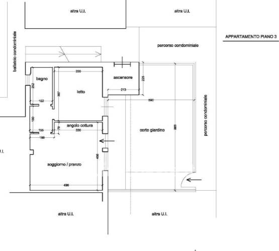
Bilocale di mq 57 a Morlupo (RM) in Via dei Villini, 18. posto al Piano Terzo con annessa corte esterna pertinenziale giardino di mq 47 e posto auto al Piano Terra di mq 14 catastali. L'immobile è composto da soggiorno pranzo con angolo cottura, un bagno, corridoio di disimpegno e una camera da letto. Internamente pavimenti in monocottura, infissi in legno vetrocamera, grate in ferro e tapparella avvolgibile. Il tutto in normale stato di conservazione come riportato sulla CTU visionabile presso lo Studio. L'immobile viene venduto tramite vendita giudiziaria con l’assistenza legale dello Studio e il prezzo indicato si riferisce all’offerta minima. POSSIBILITÀ' DI ACQUISTO IN PRE-ASTA .

OFFERTA MINIMA € 55.000,00
Valore perizia CTU € 73.000,00

Studio Mi.Eli. and Associates ltd
POMEZIA (RM)
Tel. 06/83778285
Cell. 340/5355446

Studio Mi.Eli. è uno Studio Legale costituito da un gruppo di professionisti del settore legale e immobiliare che da anni credono che il mercato delle aste immobiliari sia un’alternativa forte, concreta e conveniente rispetto all’acquisto sul mercato libero.
Nasciamo con l’intento di promuovere una particolare tipologia di acquisto, sfatando idee e preconcetti che spesso hanno accompagnato le vendite immobiliari all’asta.
Il nostro scopo è promuovere un mercato ritenuto ancora oggi riservato a pochi, facendone conoscere le grandi potenzialità. Riteniamo che le aste immobiliari siano un’opportunità concreta per tutti e per questo motivo la nostra consulenza mira a semplificare al massimo tutte le procedure operative e burocratiche, garantendo trasparenza e certezza riguardo ciò che si acquista. Tutto questo grazie alla consulenza tecnica, giuridica e commerciale dei nostri esperti.
Con un primo incontro conoscitivo potremo valutare insieme la reale possibilità di riuscire a soddisfare le Vostre esigenze. I nostri consulenti sono a disposizione per accompagnare il cliente dalla ricerca dell'immobile fino alla consegna delle chiavi, compreso l'eventuale assistenza per l'ottenimento di un mutuo.

Studio Mi.Eli. and Associates ltd
POMEZIA (RM)
Tel. 06/83778285
Cell. 340/5355446
Caratteristiche principali
Codice
287/2024 -1 U RM
Città
Morlupo
Categoria
Appartamento
Prezzo
55.000 €
Locali
2
Camere
1
Bagni
1
Mq
57
Posti auto
1
Piano
3
Classe energetica
F
Stato Immobile
Buono
Grado
Medio
Posizione
Periferia
Panorama
Vista Aperta
Lati Liberi
1
Giardino
Privato
Arredi
Non Arredato
Tipo Soggiorno
Soggiorno
Tipo Cucina
Angolo Cottura
Riscaldamento
Autonomo
Tipo Riscaldam.
Caldaia
Tipo Impianto
Radiatori
Fonte Energetica
Gas
Acqua Calda
Autonoma
Raffrescamento
No
Infissi
Legno
Serramenti
Discreto
Persiana
Tapparella PVC
Pavim. Giorno
Ceramica
Pavim. Notte
Ceramica
Pavim. Cucina
Ceramica
Pavim. Bagno
Ceramica
Pavimento
Ceramica
Accesso Disabili
Rampa
Accesso interno disabili
Pieno accesso
Isolamento
Non presente
Isolamento termico
Nessuno
Isolamento acustico
Nessuno
Destinato a residenti
No
Impianto d’irrigazione
No

Accessori: Ascensore, Porta Blindata

Mappa
Via dei Villini 18, Morlupo (RM)
Video
Condividi su
Cookie preference