Italiano
132.500 €

Appartamento a Roma zona Colle Regillo

Appartamento in vendita • Roma (Rocca Cencia, Colle Regillo) - Via Ceramida, 3
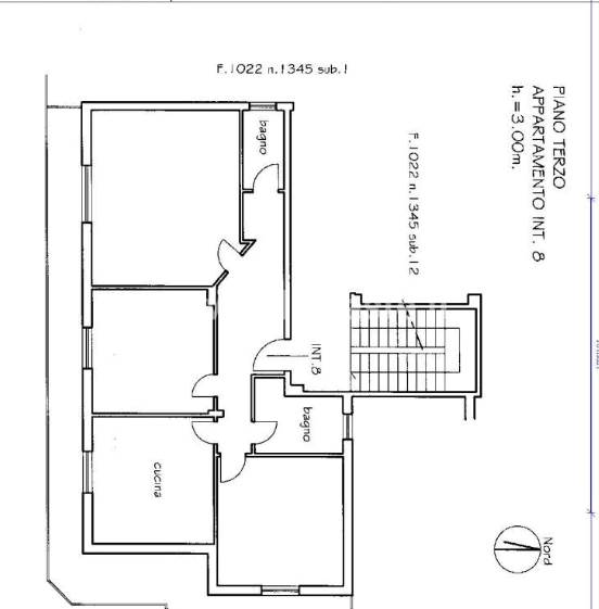
Appartamento di mq 119 a Roma, zona Colle Regillo, in Via Ceramida n. 3 posto al Piano Terzo. L'immobile è composto da ingresso, cucina, due bagni, tre camere da letto ed un balcone. Internamente infissi in alluminio e pavimenti in grès porcellanato. Il tutto in discreto stato di conservazione come riportato sulla CTU visionabile presso lo Studio.
L'immobile viene venduto tramite vendita giudiziaria con l’assistenza legale dello Studio e il prezzo indicato si riferisce all’offerta minima. POSSIBILITÀ' DI ACQUISTO IN PRE-ASTA .

OFFERTA MINIMA € 132.500,00
Valore perizia CTU € 177.000,00

Studio Mi.Eli. and Associates ltd
POMEZIA (RM)
Tel. 06/83778285
Cell. 340/5355446

Studio Mi.Eli. è uno Studio Legale costituito da un gruppo di professionisti del settore legale e immobiliare che da anni credono che il mercato delle aste immobiliari sia un’alternativa forte, concreta e conveniente rispetto all’acquisto sul mercato libero.
Nasciamo con l’intento di promuovere una particolare tipologia di acquisto, sfatando idee e preconcetti che spesso hanno accompagnato le vendite immobiliari all’asta.
Il nostro scopo è promuovere un mercato ritenuto ancora oggi riservato a pochi, facendone conoscere le grandi potenzialità. Riteniamo che le aste immobiliari siano un’opportunità concreta per tutti e per questo motivo la nostra consulenza mira a semplificare al massimo tutte le procedure operative e burocratiche, garantendo trasparenza e certezza riguardo ciò che si acquista. Tutto questo grazie alla consulenza tecnica, giuridica e commerciale dei nostri esperti.
Con un primo incontro conoscitivo potremo valutare insieme la reale possibilità di riuscire a soddisfare le Vostre esigenze. I nostri consulenti sono a disposizione per accompagnare il cliente dalla ricerca dell'immobile fino alla consegna delle chiavi, compreso l'eventuale assistenza per l'ottenimento di un mutuo.

Studio Mi.Eli. and Associates ltd
POMEZIA (RM)
Tel. 06/83778285
Cell. 340/5355446
Caratteristiche principali
Codice
389/2023-1 U RM
Città
Roma (Rocca Cencia, Colle Regillo)
Categoria
Appartamento
Prezzo
132.500 €
Locali
5
Camere
3
Bagni
2
Mq
119
Balconi
1
Piano
3
Classe energetica
F
Stato Immobile
Discrete Condizioni
Grado
Medio
Posizione
Periferia
Panorama
Vista Aperta
Lati Liberi
2
Giardino
No
Arredi
Non Arredato
Tipo Cucina
Abitabile
Riscaldamento
Autonomo
Tipo Riscaldam.
Caldaia
Tipo Impianto
Radiatori
Fonte Energetica
Gas
Acqua Calda
Autonoma
Raffrescamento
No
Infissi
Alluminio
Serramenti
Discreto
Persiana
Tapparella PVC
Pavim. Giorno
Gres Porcellanato
Pavim. Notte
Gres Porcellanato
Pavim. Cucina
Gres Porcellanato
Pavim. Bagno
Gres Porcellanato
Accesso Disabili
Rampa
Accesso interno disabili
Parziale
Isolamento
Non presente
Isolamento termico
Nessuno
Isolamento acustico
Nessuno
Destinato a residenti
No
Impianto d’irrigazione
No

Accessori: Porta Blindata

Mappa
Via Ceramida 3, Roma (RM)
Video
Condividi su
Cookie preference