Italiano
116.500 €

Appartamento a Roma zona Gianicolense

Appartamento in vendita • Roma (Monteverde/ Gianicolense) - Via dei Buonvisi, 190
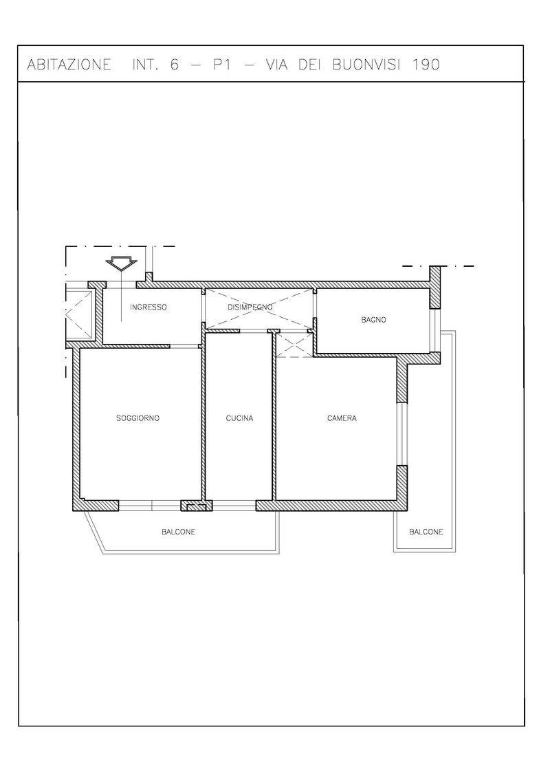
Appartamento di mq 65 a Roma (RM) Via dei Buonvisi, 190 zona Gianicolense al piano primo, L’appartamento si articola in ingresso, disimpegno, soggiorno, cucina, camera, bagno e due balconi. Il tutto in normale stato di manutenzione come riportato sulla CTU visionabile presso lo Studio.
L'immobile viene venduto tramite vendita giudiziaria con l’assistenza legale dello Studio e il prezzo indicato si riferisce all’offerta minima. POSSIBILITÀ' DI ACQUISTO IN PRE-ASTA .
OFFERTA MINIMA € 116.500,00
Valore perizia CTU € 193.800,00

Studio Mi.Eli. and Associates ltd
POMEZIA (RM)
Tel. 06/83778285
Cell. 340/5355446

Studio Mi.Eli. è uno Studio Legale costituito da un gruppo di professionisti del settore legale e immobiliare che da anni credono che il mercato delle aste immobiliari sia un’alternativa forte, concreta e conveniente rispetto all’acquisto sul mercato libero.
Nasciamo con l’intento di promuovere una particolare tipologia di acquisto, sfatando idee e preconcetti che spesso hanno accompagnato le vendite immobiliari all’asta.
Il nostro scopo è promuovere un mercato ritenuto ancora oggi riservato a pochi, facendone conoscere le grandi potenzialità. Riteniamo che le aste immobiliari siano un’opportunità concreta per tutti e per questo motivo la nostra consulenza mira a semplificare al massimo tutte le procedure operative e burocratiche, garantendo trasparenza e certezza riguardo ciò che si acquista. Tutto questo grazie alla consulenza tecnica, giuridica e commerciale dei nostri esperti.
Con un primo incontro conoscitivo potremo valutare insieme la reale possibilità di riuscire a soddisfare le Vostre esigenze. I nostri consulenti sono a disposizione per accompagnare il cliente dalla ricerca dell'immobile fino alla consegna delle chiavi, compreso l'eventuale assistenza per l'ottenimento di un mutuo.

Studio Mi.Eli. and Associates ltd
POMEZIA (RM)
Tel. 06/83778285
Cell. 340/5355446
Caratteristiche principali
Codice
45837/2024 U RM
Città
Roma (Monteverde/ Gianicolense)
Categoria
Appartamento
Prezzo
116.500 €
Locali
2
Camere
1
Bagni
1
Mq
65
Balconi
2
Piano
1
Classe energetica
E
Stato Immobile
Abitabile
Grado
Medio
Posizione
Periferia
Panorama
Vista Aperta
Lati Liberi
1
Giardino
Cortile
Arredi
Non Arredato
Tipo Soggiorno
Soggiorno
Tipo Cucina
Semi Abitabile
Riscaldamento
Centralizzato
Tipo Riscaldam.
Caldaia
Tipo Impianto
Radiatori
Fonte Energetica
Gasolio
Acqua Calda
Autonoma
Raffrescamento
No
Infissi
Legno
Serramenti
Discreto
Persiana
Tapparella PVC
Pavim. Giorno
Ceramica
Pavim. Notte
Ceramica
Pavim. Cucina
Ceramica
Pavim. Bagno
Ceramica
Accesso Disabili
Rampa
Accesso interno disabili
Pieno accesso
Isolamento
Non presente
Isolamento termico
Nessuno
Isolamento acustico
Nessuno

Accessori: Porta Blindata

Mappa
Via dei Buonvisi 190, Roma (RM)
Video
Condividi su
Cookie preference