Italiano
72.675 €

Villino bifamiliare ad Anzio, Località "Cavallo Morto"

Villa Bifamiliare in vendita • Anzio - Via Ottorino Respighi, 12
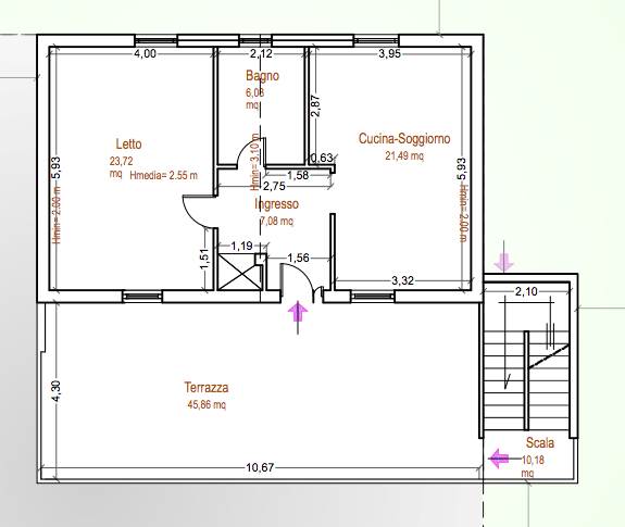
Due appartamenti di mq 100 e 70 ciascuno ad Anzio, Località "Cavallo Morto" in Via Ottorino Respighi, 12 Piano terra e Primo Piano. L'immobile è cosi composto : Al Piano Terra troviamo ingresso, soggiorno, disimpegno, due stanze da letto, ripostiglio, bagno e balcone con annessa corte esclusiva di mq 467; Al Primo Piano cucina/soggiorno, stanza da letto, bagno e terrazza di mq 45 . Il Primo appartamento si presenta ancora allo stato grezzo, senza pavimenti e senza infissi, mentre il secondo in sufficiente stato di conservazione come riportato sulla CTU visionabile presso lo Studio. L'immobile viene venduto tramite vendita giudiziaria con l’assistenza legale dello Studio e il prezzo indicato si riferisce all’offerta minima. POSSIBILITÀ' DI ACQUISTO IN PRE-ASTA .

OFFERTA MINIMA € 54.500,00
Valore perizia CTU € 73.000,00

Studio Mi.Eli. and Associates ltd
POMEZIA (RM)
Tel. 06/83778285
Cell. 340/5355446

Studio Mi.Eli. è uno Studio Legale costituito da un gruppo di professionisti del settore legale e immobiliare che da anni credono che il mercato delle aste immobiliari sia un’alternativa forte, concreta e conveniente rispetto all’acquisto sul mercato libero.
Nasciamo con l’intento di promuovere una particolare tipologia di acquisto, sfatando idee e preconcetti che spesso hanno accompagnato le vendite immobiliari all’asta.
Il nostro scopo è promuovere un mercato ritenuto ancora oggi riservato a pochi, facendone conoscere le grandi potenzialità. Riteniamo che le aste immobiliari siano un’opportunità concreta per tutti e per questo motivo la nostra consulenza mira a semplificare al massimo tutte le procedure operative e burocratiche, garantendo trasparenza e certezza riguardo ciò che si acquista. Tutto questo grazie alla consulenza tecnica, giuridica e commerciale dei nostri esperti.
Con un primo incontro conoscitivo potremo valutare insieme la reale possibilità di riuscire a soddisfare le Vostre esigenze. I nostri consulenti sono a disposizione per accompagnare il cliente dalla ricerca dell'immobile fino alla consegna delle chiavi, compreso l'eventuale assistenza per l'ottenimento di un mutuo.

Studio Mi.Eli. and Associates ltd
POMEZIA (RM)
Tel. 06/83778285
Cell. 340/5355446
Caratteristiche principali
Codice
219/2023 U RM
Città
Anzio
Categoria
Villa Bifamiliare
Prezzo
72.675 €
Locali
5
Camere
2
Bagni
1
Mq
124
Balconi
1
Mq Balcone
19
Piano
Terra
Classe energetica
F
Stato Immobile
Buono
Grado
Medio
Posizione
Periferia
Panorama
Vista Aperta
Lati Liberi
1
Giardino
Privato
Arredi
Non Arredato
Tipo Soggiorno
Soggiorno
Tipo Cucina
Abitabile
Riscaldamento
Centralizzato
Tipo Riscaldam.
Caldaia
Tipo Impianto
Termosifoni
Fonte Energetica
GPL
Acqua Calda
Autonoma
Raffrescamento
No
Infissi
Metallo
Serramenti
Discreto
Persiana
Tapparella PVC
Pavim. Giorno
Ceramica
Pavim. Notte
Ceramica
Pavim. Cucina
Ceramica
Pavim. Bagno
Ceramica
Accesso Disabili
Rampa
Accesso interno disabili
Pieno accesso
Isolamento
Non presente
Isolamento termico
Nessuno
Isolamento acustico
Nessuno
Destinato a residenti
No

Accessori: Porta Blindata

Mappa
Via Ottorino Respighi 12, Anzio (RM)
Video
Condividi su
Cookie preference