Italiano
128.500 €

Villetta a Nettuno (RM) zona Tre Cancelli

Villa in vendita • Nettuno (Tre Cancelli) - Via Palestrina, 26
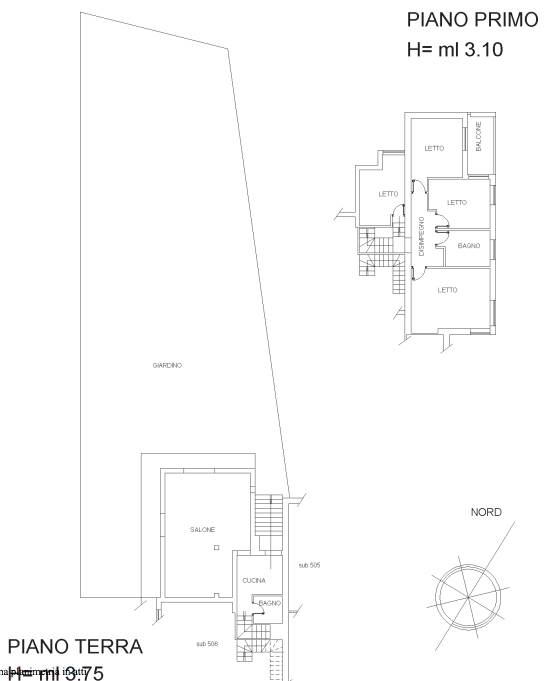
Villetta di mq 163 a Nettuno (RM), zona Tre Cancelli, in Via Palestrina n. 26 disposto su tre livelli con annesso giardino pertinenziale di mq 410. L'immobile è cosi composto: Al Piano Terra da ingresso, salone con angolo cottura e un bagno sottoscala; Al Piano Primo da disimpegno, quattro camere da letto, bagno, balcone di mq 26 ed un terrazzo con locale cantina; Al Piano Seminterrato da cantina /magazzino e locale tecnico. Internamente pavimenti in parquet, infissi in legno o PVC con doppi vetri e persiane in legno. Il tutto in mediocre stato conservativo come riportato sulla CTU visionabile presso lo Studio.
L'immobile viene venduto tramite vendita giudiziaria con l’assistenza legale dello Studio e il prezzo indicato si riferisce all’offerta minima. POSSIBILITÀ' DI ACQUISTO IN PRE-ASTA .

OFFERTA MINIMA € 128.500,00
Valore perizia CTU € 228.000,00

Studio Mi.Eli. and Associates ltd
POMEZIA (RM)
Tel. 06/83778285
Cell. 340/5355446

Studio Mi.Eli. è uno Studio Legale costituito da un gruppo di professionisti del settore legale e immobiliare che da anni credono che il mercato delle aste immobiliari sia un’alternativa forte, concreta e conveniente rispetto all’acquisto sul mercato libero.
Nasciamo con l’intento di promuovere una particolare tipologia di acquisto, sfatando idee e preconcetti che spesso hanno accompagnato le vendite immobiliari all’asta.
Il nostro scopo è promuovere un mercato ritenuto ancora oggi riservato a pochi, facendone conoscere le grandi potenzialità. Riteniamo che le aste immobiliari siano un’opportunità concreta per tutti e per questo motivo la nostra consulenza mira a semplificare al massimo tutte le procedure operative e burocratiche, garantendo trasparenza e certezza riguardo ciò che si acquista. Tutto questo grazie alla consulenza tecnica, giuridica e commerciale dei nostri esperti.
Con un primo incontro conoscitivo potremo valutare insieme la reale possibilità di riuscire a soddisfare le Vostre esigenze. I nostri consulenti sono a disposizione per accompagnare il cliente dalla ricerca dell'immobile fino alla consegna delle chiavi, compreso l'eventuale assistenza per l'ottenimento di un mutuo.

Studio Mi.Eli. and Associates ltd
POMEZIA (RM)
Tel. 06/83778285
Cell. 340/5355446
Caratteristiche principali
Codice
381/2020 U RM
Città
Nettuno (Tre Cancelli)
Categoria
Villa
Prezzo
128.500 €
Locali
7
Camere
4
Bagni
2
Mq
163
Mq Giardino
410
Balconi
1
Terrazzi
1
Piano
Terra
Classe energetica
F
Stato Immobile
Mediocre
Grado
Medio
Posizione
Periferia
Panorama
Vista Giardino
Orientamento
Nord Est
Lati Liberi
2
Giardino
Privato
Arredi
Non Arredato
Tipo Soggiorno
Salone
Tipo Cucina
Angolo Cottura
Riscaldamento
Autonomo
Tipo Riscaldam.
Caldaia
Tipo Impianto
Termosifoni
Fonte Energetica
Gas
Acqua Calda
Autonoma
Raffrescamento
No
Infissi
PVC Doppio Vetro
Serramenti
Discreto
Persiana
Persiana Legno
Pavim. Giorno
Parquet
Pavim. Notte
Parquet
Pavim. Cucina
Parquet
Pavim. Bagno
Ceramica
Accesso Disabili
Rampa
Accesso interno disabili
Parziale
Isolamento
Non presente
Isolamento termico
Nessuno
Isolamento acustico
Nessuno
Impianto d’irrigazione
No

Accessori: Doppi Vetri, Porta Blindata

Mappa
Via Palestrina 26, Nettuno (RM)
Video
Condividi su
Cookie preference