Italiano
86.500 €

Villa a Riano (RM)

Villetta schiera in vendita • Riano - Via del Ciclamino, snc
Villino di mq 130 a Riano (RM) Via del Ciclamino snc disposta su 3 piani.
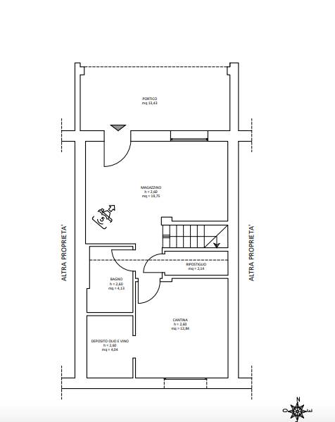
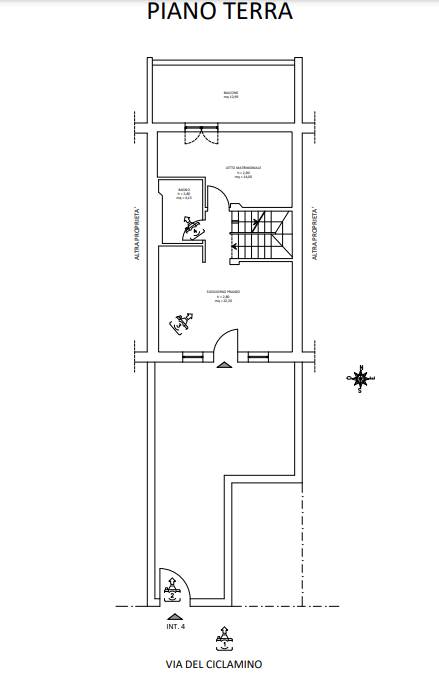
L'immobile si compone al piano seminterrato di un locale magazzino avente consistenza di 18,98 mq, di un disimpegno di 1,20 mq che serve tre ambienti differenti ovvero un bagno cieco di 4,18 mq, un ripostiglio di 2,21 mq posto al di sotto della rampa di scale, e un locale cantina di 17,36 mq. L'intero piano seminterrato è collegato al piano terra da una scala interna. Il piano terra è costituito da un soggiorno con angolo cottura di totali 20,38 mq al quale si accede tramite l'ingresso pedonale di Via del Ciclamino e risulta ben illuminato da due finestre delle medesime dimensioni il cui piano d'imposta è a 0,90 m dal pavimento. Dal soggiorno si accede al disimpegno di 2,24 mq che serve un bagno cieco di 4,13 mq, una camera da letto di 13,70 mq
che presenta un affaccio su un balcone di 12,99 mq, e al vano scala che conduce al piano mansardato.
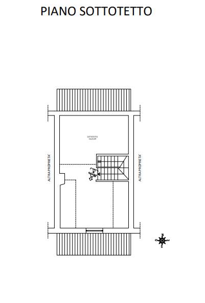
Quest'ultimo piano si presenta come un ambiente unico di 41,31 mq la cui altezza massima corrispondente con il colmo del tetto è di 2,20 m mentre la minima, corrispondente con l'imposta delle falde della copertura, è di 0,40 m. Nella falda a sinistra dello sbarco del vano scala è impostato un abbaino con un'altezza interna costante di 2,20 m e presenta una finestra posta ad
un'altezza di 1,05 m dal pavimento che illumina l'intero piano sottotetto. Il tutto in buono stato di manutenzione come riportato sulla CTU visionabile presso lo Studio.
L'immobile viene venduto tramite vendita giudiziaria con l’assistenza legale dello Studio e il prezzo indicato si riferisce all’offerta minima. POSSIBILITÀ' DI ACQUISTO IN PRE-ASTA .

OFFERTA MINIMA € 86.500,00
Valore perizia CTU € 203.450,00

Studio Mi.Eli. and Associates ltd
POMEZIA (RM)
Tel. 06/83778285
Cell. 340/5355446

Studio Mi.Eli. è uno Studio Legale costituito da un gruppo di professionisti del settore legale e immobiliare che da anni credono che il mercato delle aste immobiliari sia un’alternativa forte, concreta e conveniente rispetto all’acquisto sul mercato libero.
Nasciamo con l’intento di promuovere una particolare tipologia di acquisto, sfatando idee e preconcetti che spesso hanno accompagnato le vendite immobiliari all’asta.
Il nostro scopo è promuovere un mercato ritenuto ancora oggi riservato a pochi, facendone conoscere le grandi potenzialità. Riteniamo che le aste immobiliari siano un’opportunità concreta per tutti e per questo motivo la nostra consulenza mira a semplificare al massimo tutte le procedure operative e burocratiche, garantendo trasparenza e certezza riguardo ciò che si acquista. Tutto questo grazie alla consulenza tecnica, giuridica e commerciale dei nostri esperti.
Con un primo incontro conoscitivo potremo valutare insieme la reale possibilità di riuscire a soddisfare le Vostre esigenze. I nostri consulenti sono a disposizione per accompagnare il cliente dalla ricerca dell'immobile fino alla consegna delle chiavi, compreso l'eventuale assistenza per l'ottenimento di un mutuo.

Studio Mi.Eli. and Associates ltd
POMEZIA (RM)
Tel. 06/83778285
Cell. 340/5355446
Caratteristiche principali
Codice
73/2023 U RM
Città
Riano
Categoria
Villetta schiera
Prezzo
86.500 €
Locali
4
Camere
1
Bagni
2
Mq
130,36
Posti auto
1
Mq Giardino
82
Balconi
1
Mq Balcone
15
Piano
Terra
Classe energetica
F
Stato Immobile
Buono
Grado
Medio
Posizione
Periferia
Panorama
Vista Aperta
Lati Liberi
2
Giardino
Privato
Arredi
Non Arredato
Tipo Soggiorno
Soggiorno
Tipo Cucina
Angolo Cottura
Riscaldamento
Autonomo
Tipo Riscaldam.
Caldaia
Tipo Impianto
Radiatori
Fonte Energetica
Gasolio
Acqua Calda
Autonoma
Raffrescamento
No
Infissi
PVC Doppio Vetro
Serramenti
Ottimo
Persiana
Persiana Metallo
Pavim. Giorno
Gres Porcellanato
Pavim. Notte
Gres Porcellanato
Pavim. Cucina
Gres Porcellanato
Pavim. Bagno
Gres Porcellanato
Pavimento
Gres Porcellanato
Accesso Disabili
Rampa
Accesso interno disabili
Parziale
Isolamento
Non presente
Isolamento termico
Nessuno
Isolamento acustico
Nessuno
Destinato a residenti
No

Accessori: Doppi Vetri, Porta Blindata

Mappa
Via del Ciclamino snc, Riano (RM)
Video
Condividi su
Cookie preference